Fonte Laurentina 2.0

Home Affitto Fonte Laurentina 2.0

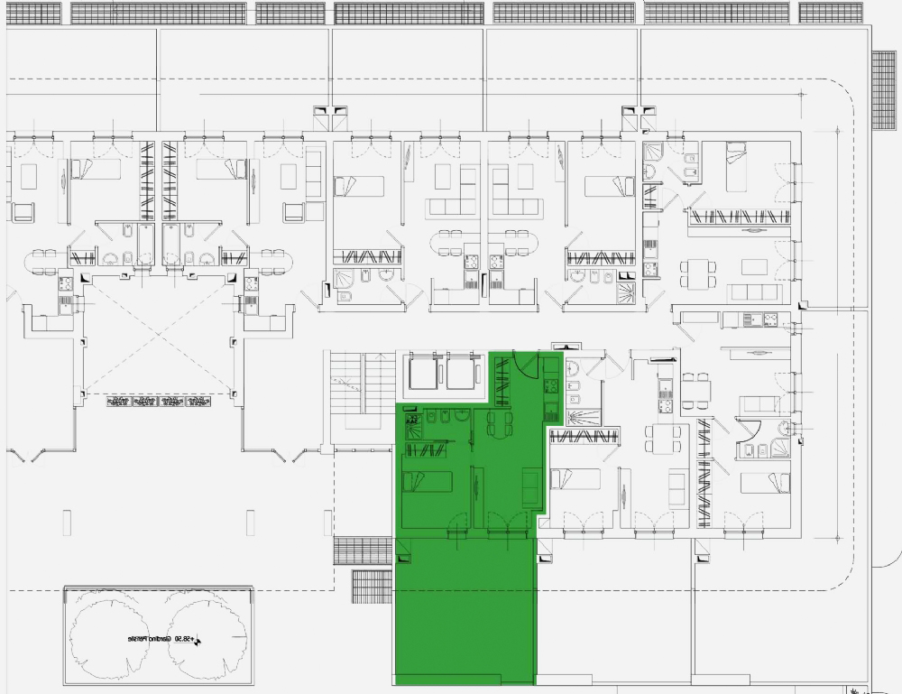
Piano terra

Appartamento 7

Scala A

Bilocale

MQ 46

Classe energetica:

B

Riservato per Studenti Campus Biomedico

Affitto mese

790 €

Pronta consegna

Bilocale in Affitto a Roma Sud - int.7 di 46

Bilocale composto da: ingresso,angolo cottura, soggiorno, camera e bagno, terrazzo di 31 Mq.

Promo

I primi 2 mesi sono GRATIS

Scopri
01
/02

1 mese di canone GRATIS + Box auto

Scopri
02
/02

Caratteristiche e accessori

Ascensore
Balcone/terrazzo di 31 mq
Possibilità di Box o posto auto
Riscaldamento: Autonomo
Raffrescamento: Predisposizione

Non hai trovato
quello che stavi cercando?

ATTIVA le notifiche per ricevere aggiornamenti sulle nuove proposte in arrivo.
Attiva notifiche

Non hai trovato
quello che stavi cercando?

ATTIVA le notifiche per ricevere aggiornamenti su altri appartamenti che torneranno liberi.
Attiva notifiche

Grazie per il tuo
interesse!

Ti informiamo che offriamo solo affitti di appartamenti completi
(NO stanze singole), non arredati e per periodi medio-lunghi.
Se questa soluzione è adatta a te, procedi con la compilazione del
form di ricerca.
Iscriviti
Iscriviti