Porta di Roma

Home Vendita Porta di Roma

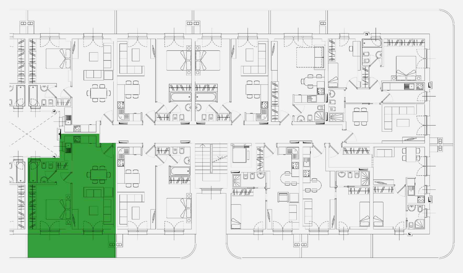
3° Piano

Appartamento 31

Scala B

Bilocale

MQ 55,75

Classe energetica:
In via di rilascio

241.000 €

Ripristinato

Bilocale in Vendita a Roma Nord - int.31 di 55.75

Bilocale precedentemente locato, posto al terzo piano, composto da: Ingresso, soggiorno con angolo cottura con finestra, camera matrimoniale, bagno con finestra e balcone di 15 Mq. Possibilita' di box auto.

Promo

Arredo in OMAGGIO

Caratteristiche e accessori

Balcone/terrazzo di 15 mq
Riscaldamento: Autonomo
Raffrescamento: Predisposizione

Non hai trovato
quello che stavi cercando?

ATTIVA le notifiche per ricevere aggiornamenti sulle nuove proposte in arrivo.
Attiva notifiche

Non hai trovato
quello che stavi cercando?

ATTIVA le notifiche per ricevere aggiornamenti su altri appartamenti che torneranno liberi.
Attiva notifiche

Grazie per il tuo
interesse!

Ti informiamo che offriamo solo affitti di appartamenti completi
(NO stanze singole), non arredati e per periodi medio-lunghi.
Se questa soluzione è adatta a te, procedi con la compilazione del
form di ricerca.
Iscriviti
Iscriviti