Porta di Roma

Home Vendita Porta di Roma

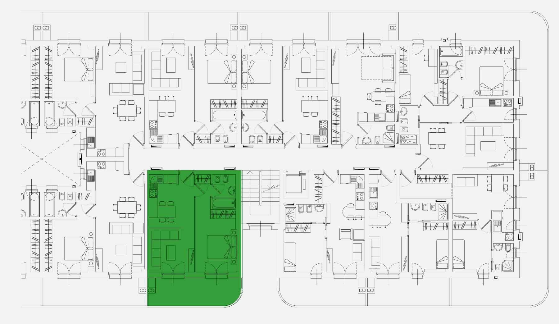
2° Piano

Appartamento 20

Scala B

Bilocale

MQ 50,25

Classe energetica:
In via di rilascio

206.000 €

Ripristinato

Bilocale in Vendita a Roma Nord - int.20 di 50.25

Bilocale,precedentemente locato, posto al secondo piano composto da: Ingresso, soggiorno con angolo cottura , camera matrimoniale, bagno e balcone di 13 Mq. Possibilita' di box auto.

Promo

Arredo in OMAGGIO

Caratteristiche e accessori

Ascensore
Balcone/terrazzo di 13 mq
Riscaldamento: Autonomo
Raffrescamento: Predisposizione

Non hai trovato
quello che stavi cercando?

ATTIVA le notifiche per ricevere aggiornamenti sulle nuove proposte in arrivo.
Attiva notifiche

Non hai trovato
quello che stavi cercando?

ATTIVA le notifiche per ricevere aggiornamenti su altri appartamenti che torneranno liberi.
Attiva notifiche

Grazie per il tuo
interesse!

Ti informiamo che offriamo solo affitti di appartamenti completi
(NO stanze singole), non arredati e per periodi medio-lunghi.
Se questa soluzione è adatta a te, procedi con la compilazione del
form di ricerca.
Iscriviti
Iscriviti