Complesso Prato fiorito

Home Vendita Complesso Prato fiorito

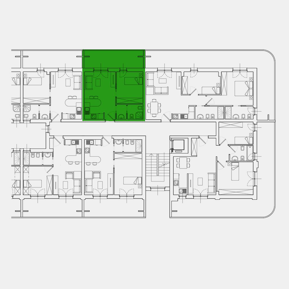
1° Piano

Appartamento 4

Scala B

Bilocale

MQ 42

Classe energetica:
In Corso di Rilascio

Data consegna:
31 Dicembre 2025

124.000 €

In costruzione

Bilocale in Vendita a Roma Est - int.4 di 42

Bilocale posto al piano primo composto da: Ingresso , soggiorno con angolo cottura, camera, bagno e terrazzo di 14 Mq

Promo

Arredo in OMAGGIO

Caratteristiche e accessori

Ascensore
Balcone/terrazzo di 14 mq
Possibilità di Box o posto auto
Riscaldamento: Autonomo
Raffrescamento: Predisposizione

Non hai trovato
quello che stavi cercando?

ATTIVA le notifiche per ricevere aggiornamenti sulle nuove proposte in arrivo.
Attiva notifiche

Non hai trovato
quello che stavi cercando?

ATTIVA le notifiche per ricevere aggiornamenti su altri appartamenti che torneranno liberi.
Attiva notifiche

Grazie per il tuo
interesse!

Ti informiamo che offriamo solo affitti di appartamenti completi
(NO stanze singole), non arredati e per periodi medio-lunghi.
Se questa soluzione è adatta a te, procedi con la compilazione del
form di ricerca.
Iscriviti
Iscriviti