Fonte Laurentina 2.0

Home Affitto Fonte Laurentina 2.0

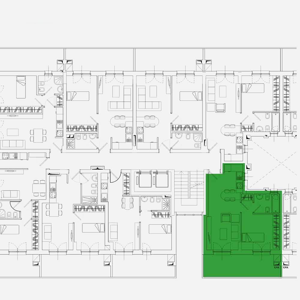
4° Piano

Appartamento 32

Scala B

Bilocale

MQ 51

Classe energetica:
In via di rilascio

Riservato per Studenti Campus Biomedico

Affitto mese

760 €

Pronta consegna

Bilocale in Affitto a Roma Sud - int.32 di 51

Bilocale posto al piano quarto composto da: Ingresso, cucinotto finestrato, soggiorno, terrazzo di 15 MQ, camera e bagno con finestra.

Promo

I primi 2 mesi sono GRATIS

Scopri
01
/02

1 mese di canone GRATIS + Box auto

Scopri
02
/02

Caratteristiche e accessori

Balcone/terrazzo di 15 mq
Ascensore
Riscaldamento: Autonomo
Raffrescamento: Predisposizione

Non hai trovato
quello che stavi cercando?

ATTIVA le notifiche per ricevere aggiornamenti sulle nuove proposte in arrivo.
Attiva notifiche

Non hai trovato
quello che stavi cercando?

ATTIVA le notifiche per ricevere aggiornamenti su altri appartamenti che torneranno liberi.
Attiva notifiche

Grazie per il tuo
interesse!

Ti informiamo che offriamo solo affitti di appartamenti completi
(NO stanze singole), non arredati e per periodi medio-lunghi.
Se questa soluzione è adatta a te, procedi con la compilazione del
form di ricerca.
Iscriviti
Iscriviti